郑州中原国际博览中心
河南省|郑州市 中国郑州郑汴路96号
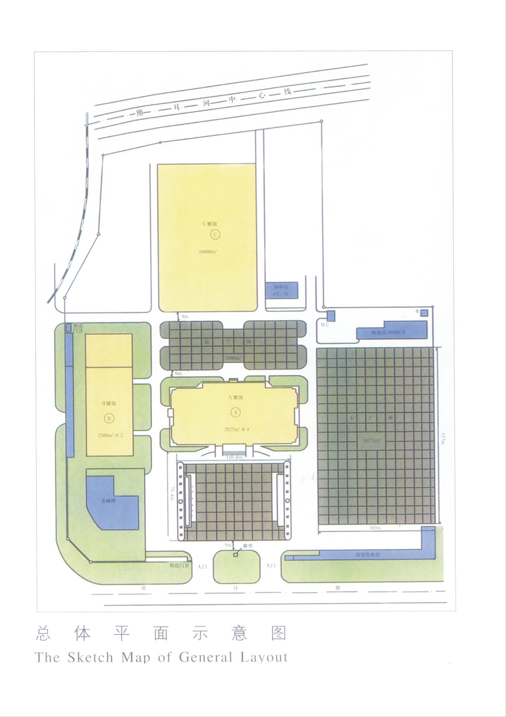
中原国际博览中心是河南省“八五”期间十大重点基础工程之一,于1993年建成并投入使用。中心占地14万平方米,可供展览面积5.3万平方米,其中室内面积2.3万平方米,室外广场3万平方米。展馆设施配套完善,有双回路供电、中央空调、自动消防、程控、宽带网电讯和成套会务服务系统,基本能够满足不同展会的需求。博览中心自运营以来,成功举办了“河南省国际投资贸易洽谈会”、“郑州全国商品交易会” 、“中国中西部经济技术合作洽谈会”以及全国性农业机械、医疗器械、制药机械、建材、家俱、通讯器材、糖酒交易会等数百次大型展览活动。由于办展效果好,深受社会各界欢迎。
郑州地处中原,交通便捷,独特的区位优势使其在全国商品流通中占据了“承东启西,连南接北”的重要地位。为郑州商贸城发展战略配套建设的中原国际博览中心,目前每年都要举办包括“郑州全国商品交易会”、“郑州农业博览会”在内的二十余个大型商贸展览活动,为河南的对外开放和商品市场流通发挥了不可替代的作用。
郑州地处中原,交通便捷,独特的区位优势使其在全国商品流通中占据了“承东启西,连南接北”的重要地位。为郑州商贸城发展战略配套建设的中原国际博览中心,目前每年都要举办包括“郑州全国商品交易会”、“郑州农业博览会”在内的二十余个大型商贸展览活动,为河南的对外开放和商品市场流通发挥了不可替代的作用。
中心占地14平方米,可供展览面积5.3万平方米,其中室内2.3万平方米,室外广场3万平方米。展览设施配套完善,有双回路供电,中央空调、客货电梯、自动消防,心盗监控,程控电讯,以及国际标准展具和成套会务服务系统。
火车站--中原国际博览中心: 603路 75路 85路 市区其它位置--中原国际博览中心: 27路 208路 42路 60路 35路 501路 61路 市区其它位置--中原国际博览中心: 27路 208路 42路 60路 35路 501路 61路
- 展馆地址:河南省|郑州市 中国郑州郑汴路96号
- 邮政编码:450004
- 联系电话:0371-66759010
- 传真号码:0371-66517766
- 电子邮件:Guobo@public2.zz.ha.cn
- 官方网站:http://www.ha-exhibition.com.cn









