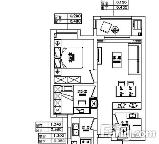
小区:青年一号
类型:半包
户型:二居室
面积:50平米
风格:田园风格
预算:2万
设计理念:此设计方案倾向于简约欧式田园风格,将古典的繁复雕饰经过简化,并与现代的材质相结合,呈现出古典而简约的新风貌。米黄色的墙面乳胶漆、白色的门套,碎花布艺欧式家具,使色彩看起来素雅、端庄、舒适、大方,整个空间给人简洁、明亮的通透感,自然而温馨。

50平米小户型装修,4万全包,三大小区案例

50平米小户型装修,4万全包,三大小区案例

50平米小户型装修,4万全包,三大小区案例

50平米小户型装修,4万全包,三大小区案例

50平米小户型装修,4万全包,三大小区案例
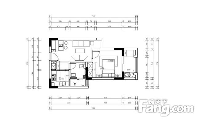
小区:春天里
类型:全包
户型:一居室
面积:46平米
风格:现代简约
全包:4万
设计师理念:此户型是单身公寓,业主是一位年轻女性,准备装了自己住一段时间,以后给父母住,业主希望家里面简单些,也希望客厅的空间大些。






小区:绿城桂花园
面积:49平米
预算:4万
设计师理念:现代简约风格的居室重视个性和创造性的表现,即不主张追求高档豪华,而着力表现区别于其他住宅的东西。住宅小空间多功能是现代室内设计的重要特征。与主人兴趣爱好相关联的功能空间包括家庭视听中心、迷你酒吧、健身角、家庭电脑工作室等。这些个性化的功能空间完全可以按主人的个人喜好进行设计,从而表现出与众不同的效果。










