
岭南林语,位于黄埔区林悦一街11号【岭南林语】目前所有单元已售完,业主们接下来要面对的一件大事便是全屋家具定制。那么他们最头疼的问题来了?
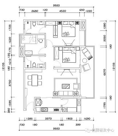
▲如何让一个90㎡紧凑三房满足备孕夫妻与父母4人的居住需求?
▲如何用业主们有限的预算设计出满足业主们需求的全屋家具方案呢?
在保证功能齐全、设计美观的前提下尽可能降低成本预算,看尚品宅配为岭南林语业主们免费打造最完美的高性价比设计方案!
岭南林语户型尚品宅配全屋定制方案

岭南林语的业主们以青壮年为主,刚刚进入婚姻生活或者刚刚拥有孩子。那么,尚品宅配用怎样出色的设计才能满足这样的家庭生活方式呢?
【尚品宅配】生活方式全屋家居,从陪伴、安全、收纳出发,为岭南林语的业主们量身定制一个最美好的家!

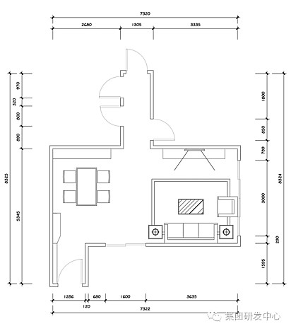
客餐厅户型的最大局限性是在于入门处鞋柜的处理,该处通道狭窄,既要鞋柜,又不能挡道。


▲厚薄柜的完美结合,高低错落美观实用,满足一家老小的日常及四季所需。



▲L型多功能双面衣柜设计:针对厕所对着门的情况量身设计,行走畅通,功能齐全。




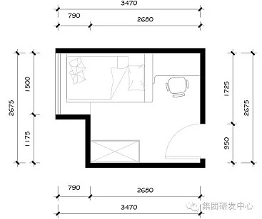
此户型为9.2平方老人房,设计上需充分满足老人的需求:实用、方便。






这是尚品宅配为岭南林语的业主们设计量身订做的全屋设计方案,不知道大家觉得如何呢?




